Napa Valley Transit Administration & Maintenance Facility
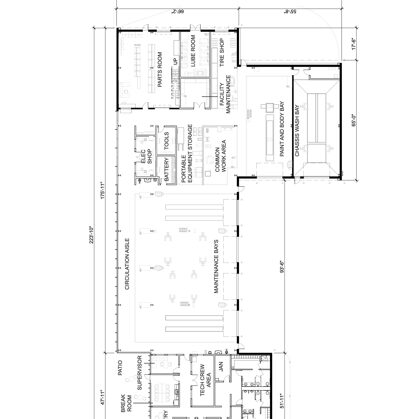
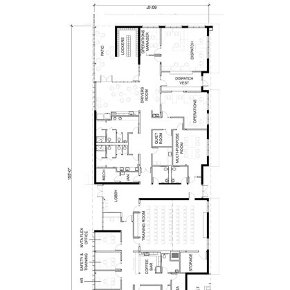
This is a visionary conceptual design for a transit operations and maintenance facility situated on an expansive 8.1-acre site in Northern California. The fundamental essence of this project draws inspiration from the majestic mountainous contours of the local valley topography. Reflecting this inspiration, the roofline of the Operations and Maintenance Buildings emulates the undulating silhouette, while saw-tooth clerestory windows add a distinctive touch. Furthermore, solar panel canopies gracefully span the parking lots, harmonizing with the overall design.
The building profile was meticulously crafted to optimize the utilization of rooftop solar energy while simultaneously adhering to the slope requirements set forth by the business park association for the maintenance areas. It also strategically accentuates a prominent public-facing facade, addressing the roof-related prerequisites of the project.
To ensure a harmonious blend with the surrounding environment, architectural standing seam metal panels were selected as the exterior material. These panels seamlessly extend across both the roofs and walls, deliberately limiting southern openings to mitigate heat gain. The eastern elevation of the Operations Building was thoughtfully designed to serve as the main entry point, showcasing a distinguished full-height curtain wall that warmly welcomes visitors into the facility's lobby. Meanwhile, the Maintenance Building boasts north-facing Kalwall panels, which indirectly diffuse natural light and create a serene ambience within the interior spaces.
project in collaboration with Stantec
