Skip to main content
  • Home
  • Projects
    • Architecture | 建築設計
      • Busan Tower - AquaPolis
      • Meritz Busan Office Tower
      • Scott & White Hospital
      • Torrance Memorial Medical Center
      • Jian Chuan Museum
      • 301 Ocean Condo
      • Pasadena Gateway
      • Corporate Center Pasadena
    • Commercial Interior | 商業室內
      • Jacobs Atlanta Office
      • Jacobs Dallas Office
      • Jacobs Corporate Headquarters
      • Jacobs Fort Worth Office
      • Mattel Design Center
      • Pointe Fitness Center
      • San Francisco Chronicle
      • Southeast Financial Center
    • Residential Interior / 住宅室內
      • Dunnan Residence
    • Transportation | 大眾運輸
      • Foothill Transit West Covina Park n Ride
      • LA Metro Willowbrook / Rosa Parks Station
      • LA Metro East San Fernando Valley Transit Corridor
      • Napa Vally Transit Admin.&Maintenance Facility
    • Urban Design​ | 城市規劃/設計
      • Bahrain Muharraq Corniche
      • BP Whiting Campus
      • Denver WestLot Coors Field
      • Dubai World
      • Greenway Plaza
      • Morocco Mazagan Green City
      • Morocco Laayoune Green City
      • Morocco OCP Headquarters
  • Services
  • Contact

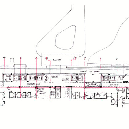
Scott & White Hospital at College Station  

project in collaboration with Jacobs

版權所有©  洪懋楨設計有限公司         |    ©  Curtis Hung Design LLC  All rights reserved.           |     curtishungdesign@gmail.com