Meritz Busan Office Tower
Situated at a unique intersection near Busan's port, this tower will become the dominant building in a newly developing region. Its distinctive form is derived from the shape of the property, which sits at the apex of a diagonal intersection of two primary streets and is adjacent to a memorial park. Rising above the mature trees of the park, the tower will serve as a sentinel object, commanding attention within the city.
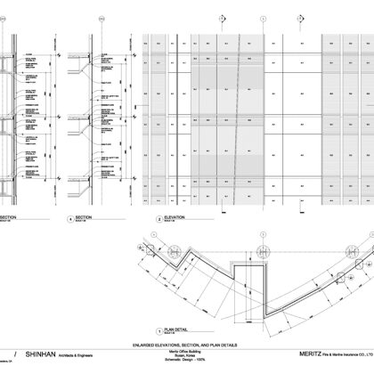
The design of the tower is oriented towards maximizing ocean and beachfront views. Its identifiable silhouette can be seen from various viewpoints across the city, while the sleek and modern primary curtainwall incorporates state-of-the-art energy-saving concepts. The curtainwall features a unique concept akin to ruffled feathers, utilizing mini-greenhouses to store air warmed by the sun for pre-heated warmth in colder temperatures. It also helps to reduce heat gain by exhausting exterior heat build-up before it reaches the interior.
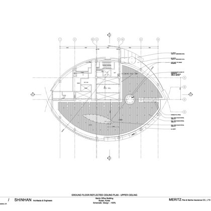
The base of the building showcases an interplay of form, materials, and transparency, seamlessly integrating with the surrounding landscape and pedestrian walkways, extending the park experience into the building's plaza.
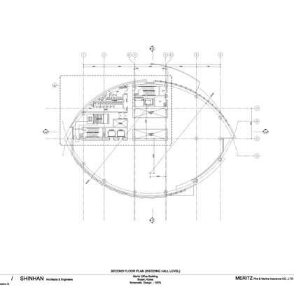
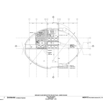
The tower's floor plates offer efficient and column-free office layouts, while the penthouse floors can be customized for special uses. Below the lobby level, a gathering space doubles as a wedding chapel, complete with its own motor court and adjacent park lobby.
The overall architectural character of the building embodies the professionalism of Meritz Securities Business and its affiliated tenants, providing employees with an enriched and efficient work environment. The tower stands as a testament to 21st-century design, materials, and energy consumption, serving as a significant landmark representing Busan's progressive vision.
project in collaboration with Keating/Khang
