301 Ocean Condo
At the convergence of Ocean Avenue and San Vicente in Santa Monica, where the city gracefully meets the ocean and the vast expanse of the sky, a remarkable design is sought-after. This design not only aims to fulfill the requirements for luxurious condominiums with breathtaking ocean views but also endeavors to contribute to the architectural tapestry of the city, drawing inspiration from the site's exceptional character. Much like a bird soaring amidst the wind or a fan elegantly fanning against the expansive sky, this building emanates from the surrounding block-by-block housing along San Vicente, reaching towards the limitless horizon beyond the Pacific.
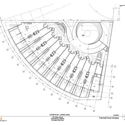
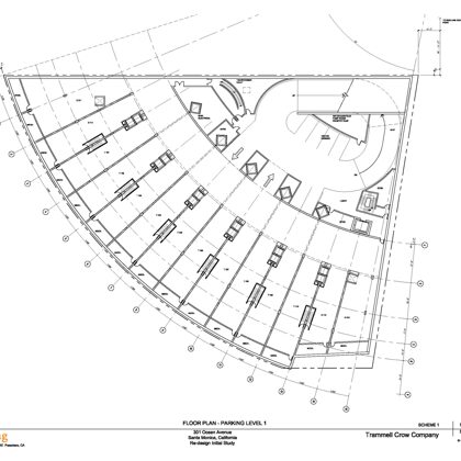
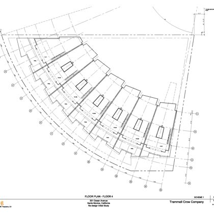
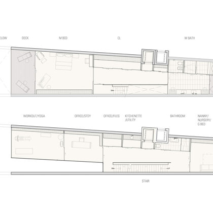
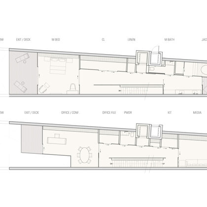
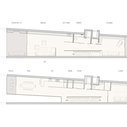
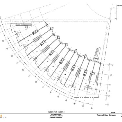
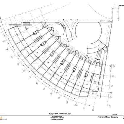
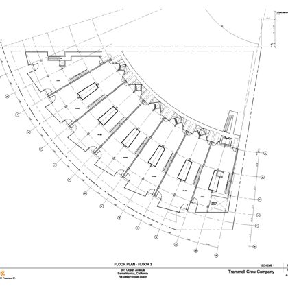
Each unit lining the street will command panoramic vistas of the captivating Malibu Headlands and the Pacific Ocean. Access to the residences is facilitated through an exquisite motor court, granting entry to individual elevators that lead to each townhouse from the parking level below. Guests may park within the motor court or utilize the visitor parking located on the first level, adjacent to the sunlit-filled atrium. Within each unit, a light well has been incorporated, allowing natural sunlight to permeate every corner and floor. While the majority of the units comprise townhomes, two duplex units grace the eastern end, penthouse units adorn the rooftop, and six medium-income units are positioned on the opposite side of the courtyard.
Architecturally, the expression of the building emphasizes terra cotta screens for the bedroom windows, while generously employing expansive glass surfaces for the living areas. The pools located at the penthouse level feature acrylic sides, intermittently revealing the mesmerizing glow of the water to passersby on the street. Each penthouse roof boasts a soaring screen, further enhancing the fan-like character of the building as it reaches towards the sky.
The materials, finishes, and appointments employed throughout all the units and common areas reflect the pinnacle of craftsmanship and attention to detail. Moreover, the building will meet the most stringent standards for sustainability and energy consumption, aligning with the latest advancements in environmentally conscious practices.
project in collaboration with Keating/Khang
